 |
電 話: |
021-59775595 |
|
021-59775535 |
|
021-51863849 |
傳 真: |
021-59775509 |
郵 編: |
201705 |
郵 箱: |
bengfawj@163.com |
|
|
|
|
一、JZJBA羅茨水環真空機組的性能參數:
羅茨水環真空機組(前級泵配2BA型) |
JZJBA羅茨水環真空機組 |
抽氣速率
(L/S)
Exhaust
rate |
極限壓力
(≤#Pa)
Ultimate
Pressure |
機級組成型號
Construction
of Pump System |
總功率
(KW)
Total
Power |
進氣口徑
(mm)
Inlet
Diameter |
排氣口徑
(mm)
Outlet
Diameter |
重量
(Kg)
Weight |
主泵
Main
Pump |
中間泵
Holding
Pump |
前級泵
Backing
Pump |
JZJBA30.25 |
30 |
≤300 |
ZJH-30 |
|
2BA-0.8 |
2.95 |
25 |
25 |
120 |
JZJBA70.40 |
70 |
≤300 |
ZJH-70 |
|
2BA-2 |
5.5 |
50 |
50 |
160 |
JZJBA70.50 |
70 |
≤300 |
ZJH-70 |
|
2BA-3 |
6.6 |
50 |
50 |
210 |
JZJBA150.50 |
150 |
≤300 |
ZJH-150 |
|
2BA-3 |
7.7 |
80 |
80 |
260 |
JZJBA150.100 |
150 |
≤300 |
ZJH-150 |
|
2BA-6 |
13.3 |
80 |
80 |
520 |
JZJBA300.100 |
300 |
≤300 |
ZJH-300 |
|
2BA-6 |
14 |
160 |
100 |
540 |
JZJBA300.200 |
300 |
≤300 |
ZJH-300 |
|
2BA-12 |
19 |
160 |
100 |
580 |
JZJBA600.200 |
600 |
≤300 |
ZJH-600 |
|
2BA-12 |
20.5 |
200 |
120 |
760 |
JZJBA1200.200*2 |
1200 |
≤300 |
ZJH-1200 |
|
2BA-12*2 |
37.5 |
250 |
120 |
1200 |
JZJBA70.30.25 |
70 |
≤20 |
ZJH-70 |
ZJH-30 |
2BA-0.8 |
4.1 |
50 |
25 |
170 |
JZJBA70.70.35 |
70 |
≤20 |
ZJH-70 |
ZJH-70 |
2BA-2 |
6.6 |
50 |
40 |
220 |
JZJBA150.70.50 |
150 |
≤20 |
ZJH-150 |
ZJH-70 |
2BA-3 |
8.8 |
80 |
50 |
320 |
JZJBA150.150.100 |
150 |
≤20 |
ZJH-150 |
ZJH-150 |
2BA-6 |
15.4 |
80 |
80 |
540 |
JZJBA300.150.100 |
300 |
≤20 |
ZJH-300 |
ZJH-150 |
2BA-6 |
17.2 |
160 |
80 |
650 |
JZJBA600.300.200 |
600 |
≤20 |
ZJH-600 |
ZJH-300 |
2BA-12 |
26.5 |
200 |
120 |
870 |
JZJBA1200.600.200*2 |
1200 |
≤20 |
ZJH-1200 |
ZJH-600 |
2BA-12 |
39.5 |
250 |
120 |
1380 |
JZJBA2500.1200.200*2 |
2500 |
≤20 |
ZJH-2500 |
ZJH-1200 |
2BA-12*2 |
52.5 |
250 |
120 |
1870 |
JZJBA3300.1200.200*2 |
3300 |
≤20 |
ZJH-3300 |
ZJH-1200 |
2BA-12*2 |
55.5 |
320 |
120 |
2780 |
JZJBA70.70.30.25 |
70 |
≤1 |
ZJH-70*2 |
ZJH-30 |
2BA-0.8 |
4.9 |
50 |
25 |
290 |
JZJBA150.70.70.50 |
150 |
≤1 |
ZJH-150 |
ZJH-70*2 |
2BA-3 |
10.7 |
80 |
50 |
320 |
JZJBA300.150.150.100 |
300 |
≤1 |
ZJH-300 |
ZJH-150*2 |
2BA-6 |
19.4 |
160 |
100 |
380 |
JZJBA300.300.300.200 |
300 |
≤1 |
ZJH-300 |
ZJH-300*2 |
2BA-12 |
27 |
160 |
1120 |
450 |
JZJBA600.600.300.200 |
600 |
≤1 |
ZJH-600*2 |
ZJH-300 |
2BA-12 |
35 |
200 |
120 |
870 |
JZJBA1200.600.600.200 |
1200 |
≤1 |
ZJH-1200 |
ZJH-600*2 |
2BA-12 |
38.5 |
250 |
120 |
1280 |
JZJBA2500.
1200.1200
200*2 |
2500 |
≤1 |
ZJH-2500 |
ZJH-1200 |
2BA-12*2 |
63.5 |
320 |
120 |
3400 |
|
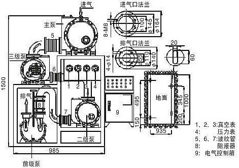
二、JZJBA羅茨水環真空機組外形及安裝尺寸: |
  |
羅茨真空機組系列產品:JZJS型羅茨水環,JZJBA羅茨水環,JZJ2B羅茨水環,JZJX型羅茨旋片,JZPH羅茨滑閥,LSJ型羅茨-水噴射串聯,2LSJ型二級羅茨水噴射,LQSJ羅茨汽水串聯,F3LSJ型 三羅茨水噴射,WLZJ無油往復羅茨真空機組 |
真空機組系列產品:羅茨真空機組,水噴射真空機組,汽水串聯真空機組,其它真空機組 |